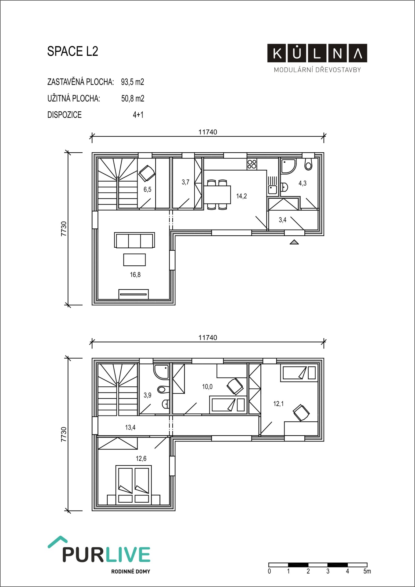
Rostoucí domy pro moderní bydlení - to jsou Modulární dřevostavby KŮLNA. Tuto variantu sestavy KŮLNY tvoří čtyři moduly na zastavěné ploše 64,2 m2. Moderní dům ve tvaru písmene "L" má 93,5 m2 užitné plochy a dispozicí 4+1. V přízemí se nachází obytná část kuchyň, jídelna a obývací pokoj se zázemím a v patře jsou umístěny ložnice s koupelnou, celkem pro 4-5 osob. Výhodou je malá pracovna. Ideální patrový rodinný dům i pro menší pozemek.
Nízkoenergetický rodinný dům KŮLNA stejně jako všechny naše typové domy je dodáván ve variantě pravá nebo levá. To znamená, že jej lze zrcadlově otočit dle orientace pozemku. Exteriér KŮLNY lze dokončit libovolným fasádním systémem nebo obkladem. Dodavatelské práce a stupně dokončení dle dohody.
Půdorysná řešení, cenu i další varianty najdete také na samostatném webu www.drevostavbyKULNA.cz


