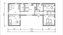
Rostoucí domy pro moderní bydlení - to jsou Modulární dřevostavby KŮLNA. Tuto variantu sestavy KŮLNY tvoří tři moduly na zastavěné ploše 96 m2. Jedná se o přízemní moderní dům 77 m2 užitné plochy a dispozicí 4+1 kterou tvoří kuchyň s jídelnou, obývací pokoj, ložnice, 2 pokoje a koupelna. Velkou výhodou jsou 2 komory. Zejména v letních měsících oceníte atrium které vytváří sestava ve tvaru písmene "U".
Nízkoenergetický rodinný dům KŮLNA stejně jako všechny naše typové domy je dodáván ve variantě pravá nebo levá. To znamená, že jej lze zrcadlově otočit dle orientace pozemku.
Exteriér KŮLNY lze dokončit libovolným fasádním systémem nebo obkladem. Dodavatelské práce a stupně dokončení dle dohody.
Půdorysná řešení, cenu i další varianty najdete také na samostatném webu www.drevostavbyKULNA.cz


