Purlive logo

+420 736 224 675

info@purlive.cz

Dřevostavby
  • Katalog produktů
    • Obvodové stěny
    • Vnitřní stěny
    • Štítové stěny a další
    • Stropní konstrukce a další
  • O systému
    • Výhody a vlastnosti
    • Certifikáty
  • Stavební firmy
  • Projektanti
  • Referenční stavby
  • Kdo jsme
    • Sociální odpovědnost
    • ADMD
    • Kariéra
    • Blog PURLIVE
    • Podporujeme
    • Publicita projektu
  • Kontakty

AMBIENT 105

AMBIENT 105 (2)
AMBIENT 105 Interiér (1)
AMBIENT 105 Interiér (2)
+6
AMBIENT 105 Interiér (3)
AMBIENT 105 Stavba k dokončení (1)
AMBIENT 105 Stavba k dokončení (2)
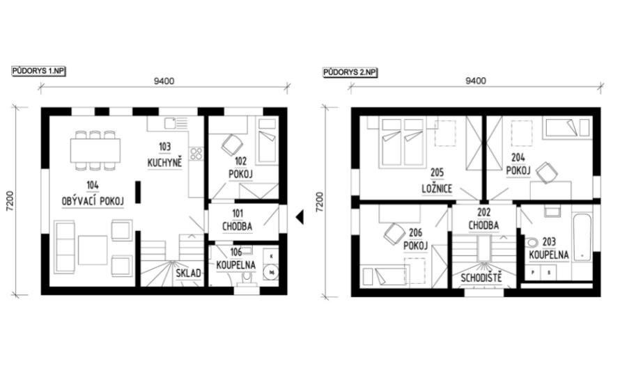
AMBIENT 105 Půdorys
AMBIENT 105 Legenda místností
AMBIENT 105 Pohledy
Zavřít galerii
Základní parametry
Dispozice: 5+kk
Zastavěná plocha: 67,7 m²
Celková užitková plocha: 105 m²
Rozsah dodávky: K dokončení
Cena:2 467 609 Kčvčetně 15% DPH
Nezávazná poptávka

* cena je orientační a platná k 15.6.2022

Popis

Dvoupodlažní rodinný dům AMBIENT 105 patří mezi oblíbené nízkoenergetické domy nejenom díky své dispozici 5+kk, ale také díky maximalizaci užitného prostoru na zastavěné ploše pouhých 67,7 m2. Ten sčítá komfortních 105 m2 rozdělených na dvě podlaží. Přízemí je tvořené prostorným obývacím pokojem, který umožňuje výstup na terasu a je spojený s jídelnou a kuchyní. Nechybí ani koupelna a pokoj pro hosty/pracovna. Druhé podlaží nabízí dva pokoje o velikosti 12, 8 m2 a 10,6 m2 a ložnicí o výměře 14,8 m2. Tím je zajištěno soukromí a klidová zóna vhodná až pro pětičlennou rodinu. Na patře se dále nachází i druhá koupelna, která odráží každodenní potřeby.

Prohlédněte si galerii domu ve které se nachází i vizualizace stavby k dokončení!

Nízkoenergetický dvoupodlažní rodinný dům AMBIENT 105 je postaven ze stavebního systému PURLIVE a může být dodán ve variantě pravá nebo levá, to znamená, že jej lze zrcadlově otočit dle orientace pozemku.

Zvýhodněná cena výkresové části projektové dokumentace typového domu AMBIENT 105 činí 25 000 Kč + DPH a je již obsažena v ceně domu. Cena je stanovena na 50 km od Zlína a obsahuje i statický posudek a pojištění stavby.

Detailní rozsah dodávky

Stáhněte si PDF s podrobným rozsahem dodávky stavby k dokončení PURLIVE.

Stáhnout PDF

Detailní rozsah dodávky

Stáhněte si PDF s podrobným rozsahem dodávky stavby k dokončení PURLIVE.

Stáhnout PDF

Mohlo by Vás zajímat

CLASSIC 93 (1)

CLASSIC 93

Rozsah dodávky: K dokončení
1 816 392 Kč
AMBIENT 94 (2)

AMBIENT 94

Rozsah dodávky: K dokončení
2 217 717 Kč
AMBIENT 105 (1)

AMBIENT 105

Rozsah dodávky: K dokončení
2 467 609 Kč

Najdete nás
na sociálních sítích

Jsme členem Asociace
dodavatelů montovaných domů

Image

Jsme partneři serveru
Svět dřevostaveb

Dřevostavitel - online svět dřevostaveb

Jsme ověřený dodavatel

Image
  • PURLIVE, spol. s r. o.
  • Rybníky VII 5547 | 760 01 Zlín
  • info@purlive.cz
  • +420 601 370 944
  • GDPR dokumenty
  • {n3tcookieconsent settings}Nastavení cookies{/n3tcookieconsent}
  • Ochrana osobních údajů
  • Certifikáty
  • Spolupracujeme

Copyright 2023 © PURLIVE, vytvořil Webtom

Publish the Menu module to "offcanvas" position. Here you can publish other modules as well.
Learn More.