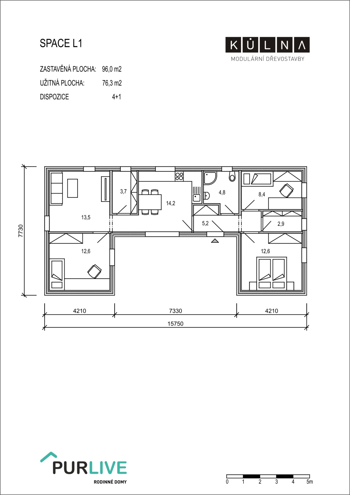
KŮLNA Space L1

02_kulna_space_l1_76_pudorys
+1
Základní parametry
Dispozice: 4+1
Zastavěná plocha: 95,95 m²
Celková užitková plocha: 77,9 m²
Rozsah dodávky: K dokončení
Cena:3 032 000 včetně 15% DPH

* cena je orientační a platná k 8.3.2023

Popis

Rostoucí domy pro moderní bydlení - to jsou Modulární dřevostavby KŮLNA. Tuto variantu sestavy KŮLNY tvoří tři moduly na zastavěné ploše 96 m2. Jedná se o přízemní moderní dům 77 m2 užitné plochy a dispozicí 4+1 kterou tvoří kuchyň s jídelnou, obývací pokoj, ložnice, 2 pokoje a koupelna. Velkou výhodou jsou 2 komory. Zejména v letních měsících oceníte atrium které vytváří sestava ve tvaru písmene "U".

Nízkoenergetický rodinný dům KŮLNA stejně jako všechny naše typové domy je dodáván ve variantě pravá nebo levá. To znamená, že jej lze zrcadlově otočit dle orientace pozemku.
Exteriér KŮLNY lze dokončit libovolným fasádním systémem nebo obkladem. Dodavatelské práce a stupně dokončení dle dohody.

Půdorysná řešení, cenu i další varianty najdete také na samostatném webu www.drevostavbyKULNA.cz